menu sluiten

Forschungsgebäude öaw

bekijk

Forschungsgebäude öaw 

In het Forschungsgebäude (onderzoeksgebouw) in het Oostenrijkse Graz zijn verschillende wetenschappelijke onderzoeksgroepen bijeengebracht. Het ontwerp van cepezed moest de interactie tussen de gebruikers stimuleren. Ook moest het pand flexibel in te delen zijn, vanwege een eventuele toekomstwaarde als gewoon kantoor.

  • opdrachtgever(s)
  • österreichische akademie der wissenschaften, wenen
  • locatie
  • Graz-Messendorf
  • gebruiker(s)
  • österreichische akademie der Wissenschaften, Wenen
  • expertise
  • architectuur
helmut tezak

De grootste uitdaging  

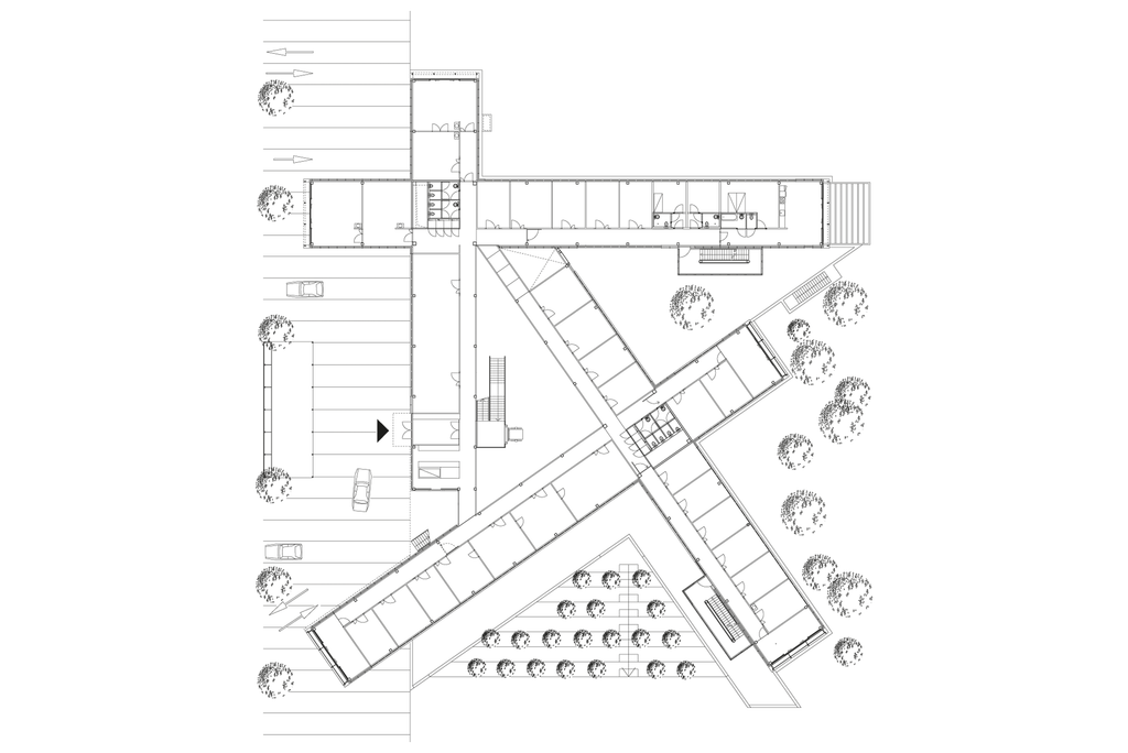
Hoe maak je een gebouw met een lange reeks eenvormige kantoren en laboratoria toch prikkelend en ruimtelijk interessant? We kozen voor een grondplan waarin vier langgerekte stroken twee ongelijke, samengestelde kruizen vormen. Drie van de kruisarmen zijn op of nabij het uiteinde met elkaar verbonden, waardoor ze samen een driehoekig atrium omspannen.

Het gebouw lijkt zich in alle richtingen nieuwsgierig uit te strekken. Zowel de gangen als laboratoria zien uit op buiten.

cepezed

Trappenhart  

Het atrium is overdekt met glas, herbergt het hoofdtrappenhuis en de galerijen en functioneert als levendig centrum van het gebouw.

Helmut Tezak
Helmut Tezak

partners

  • opdrachtgever: österreichische akademie der wissenschaften
  • lokale samenwerkingspartners: architekt di herfried peyker & ingenieurburo wendl
  • constructies: ingenieurburo wendl
  • installaties: bacon gebaudetechnik, tb pickl
  • brandveiligheid: gerhard duh
contact
mail bd@cepezed.nl of 
bel ons business development team op +31 (0)15 2150000