menu sluiten

Orthopedie OLVG

bekijk

Orthopedie OLVG 

De afdeling orthopedie van het Onze Lieve Vrouwen Gasthuis (OLVG) Amsterdam West richt zich op de mogelijkheden van de patiënt, niet op de beperkingen. cepezed en cepezedinterieur kregen de opdracht om deze waarde terug te laten komen in een nieuw ontwerp van de polikliniek en loungeroom.

  • opdrachtgever(s)
  • OLVG
  • locatie
  • Amsterdam
  • gebruiker(s)
  • Patiënten en personeel OLVG
  • expertise
  • architectuur
    cepezed interieur

Comfortabel welkom  

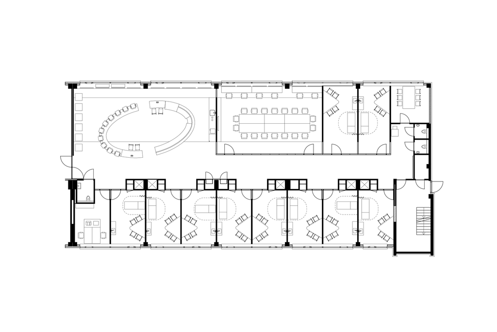
De polikliniek ontvangt de patiënten aan de hospitality-desk. De ontvangst- en wachtruimte heeft een overzichtelijke indeling en een uitnodigende uitstraling. De ruimte is ingericht met comfortabele banken en speciaal in hoogte verstelbaar meubilair dat helemaal is toegespitst op orthopedische patiënten.

lucas van der wee | cepezed

Vergaderzaal annex leeskamer  

Als de staf de vergaderzaal niet nodig heeft, kunnen de patiënten de ruimte als lees- en wachtkamer gebruiken. De ramen aan beide langszijden van de afdeling bieden een goede, regelbare daglichttoetreding. Het groen langs de gevels buiten zorgt voor een aangenaam uitzicht en tegelijkertijd voor privacy.

Lucas van der Wee | cepezed

Tweekamersysteem  

Het ontwerp is gericht op een visueel rustige beleving, die de patiënt op zijn gemak stelt. In die nieuwe layout werken artsen en behandelaars volgens het tweekamersysteem. Zij kunnen zich makkelijker tussen twee behandelkamers heen en weer bewegen en zo efficiënter werken.

cepezed
Lucas van der Wee | cepezed

Twee werelden, één ontwerp  

In de materialisatie en aankleding introduceerde cepezedinterieur twee werelden: onderzoek en wachten. De onderzoeksruimten hebben een professionele en hygiënische uitstraling. De ontvangst- en wachtruimte en de loungeroom kennen daarentegen een warme, luxe en gastvrije atmosfeer.

Lucas van der Wee | cepezed

partners

  • opdrachtgever: olvg
  • interieurontwerp: cepezedinterieur
  • installaties: ingenieursbureau linssen
  • hoofdaannemer: hillen & roosen
  • interieurbouwer: herman thijs interieurbouw
contact
mail bd@cepezed.nl of 
bel ons business development team op +31 (0)15 2150000