menu close

Two demountable houses under one roof

view

Two demountable houses under one roof 

On the southern edge of Delft stands this much-discussed and award-winning house. Maximum spatial quality and long sight lines are the key words here. The building structure is a kit of parts and the floors, walls, stairs et cetera consist of separate, prefabricated parts as well.

  • client(s)
  • Pesman & Van Seijen families
  • location
  • Delft
  • user(s)
  • Pesman & Van Seijen families
  • expertise
  • architects
Léon van Woerkom | cepezed

Optical illusion  

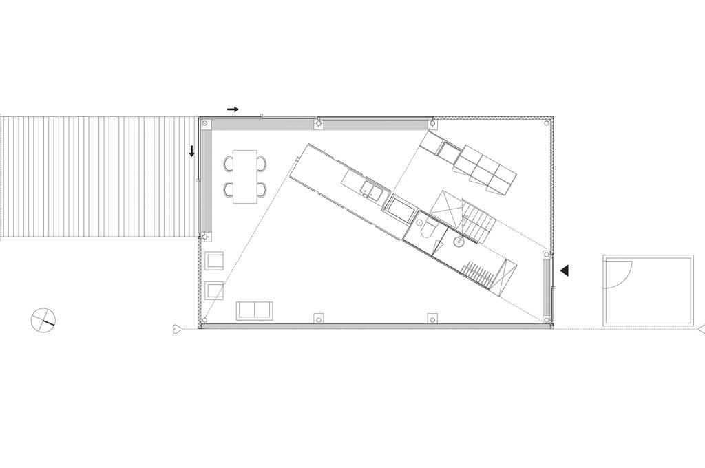
In order to maximize the volume, the building is completely rectangular and as high as allowed. Inside, all the rooms are organized around a diagonally placed service block, which runs across all three floors. This is where the facilities and wet rooms are located. As a result of this arrangement, the house has long sight lines and the spaces appear larger than they actually are.

Léon van Woerkom | cepezed
cepezed
Léon van Woerkom | cepezed

Unprecedented spaciousness  

The various voids in the upper floors also give the house an unprecedented feeling of spaciousness. Just like the largely glass façades and interior walls in combination with the panoramic view over many miles.

Léon van Woerkom | cepezed
Léon van Woerkom | cepezed

All about lightness  

The technologies and materialization are also distinctive. Partly inspired by other industries where lightweight construction is particularly important, we have used various components for the first time in a residential setting.

A characteristic feature are the four-metre-high and two-metre-wide sliding fronts that connect to each other at the southern corners of the houses without an intermediate strut.

Léon van Woerkom | cepezed

partners

  • client: pesman & familie van seijen families

awards & nominations

  • prix rhénan d'architecture | 2000 | mention spéciale 'electricité de strasbourg'
  • a.j. van eck prize | 1995
  • eccs european award for steel structures | 1993
  • national steel award | 1992 | buildings with steel or hybrid supporting structure
  • schöner wohnen hauswettbewerb | 1992
  • premio internazionale di architettura andrea palladio | 1991
  • premio iritecna per l'europa | 1991
  • building industry award | 1991
  • nationale schildersprijs | 1991
  • chicago metallic award | 1991 | woningen
  • british steel colorcoat building awards | 1991
contact
→ Mail bd@cepezed.nl or call our business development team on +31 (0)15 2150000