menu sluiten

Park hoog oostduin

bekijk

Park hoog oostduin 

Dit voormalige Shell-kantoor aan de Oostduinlaan in Den Haag staat in de wijk Benoordenhout. Het werd ontworpen door H.E. Oud, zoon van de beroemde architect J.J.P. Oud. cepezed transformeerde het tot een luxe appartementencomplex in het groen.

  • opdrachtgever(s)
  • OD75 B.V.
  • locatie
  • Den Haag
  • gebruiker(s)
  • Particuliere bewoners
  • expertise
  • architectuur
    cepezed interieur
  • projectbrochure
cepezed | léon van woerkom
cepezed | léon van woerkom
lucas van der wee | cepezed

ruim 200 luxe woningen  

De locatie ligt aan de rand van het landgoed Oostduin-Arendsdorp in Den Haag. Het oorspronkelijke complex uit 1968 bestond uit een groot hoogbouwvolume met haaks daarop een lager bouwblok. Het lagere blok is afgebroken en op de bestaande fundering vervangen door een nieuw, dat minder langgerekt is dan het bestaande en op wat afstand van de hoogbouw staat. Hierdoor is er nu ruimte tussen de twee volumes en zijn het naastgelegen park en landgoed meer betrokken.

cepezed ontwikkelde voor het project ruim 200 woningen in verschillende typen en grootten in het hogere marktsegment.

Lucas van der Wee | cepezed
cepezed

De entreezijde aan de Oostduinlaan  

Aan de stadskant kreeg het volume een horizontaal gelede, drie meter diepe uitbreiding. Deze bestaat uit balkons en vergrotingen van de woonkamers.

Onderbrekingen in de aanbouw vormen samen twee grootschalige verdiepingen van het gevelvlak. Die dragen bij aan het intrigerende aanzicht van dit pand in Den Haag Benoordenhout.

lucas van der wee
lucas van der wee | cepezed

Ontwerp vanuit de binnenkant  

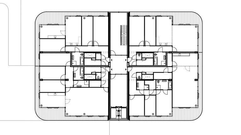
De hoogbouw van het complex aan de Oostduinlaan kreeg een hoge kwaliteit van wonen door een ontwerpbenadering 'vanuit de binnenkant'.

Bestaande kenmerken als de fijnmazige constructiestructuur werden daarbij zoveel mogelijk intact gelaten en benut. De centrale gang naar de woningen, liften en trappen beslaat op iedere verdieping maar weinig ruimte. Daardoor is er voor de bewoners veel woonruimte over. Nieuwe vides in de gangzones vergroten de ruimtelijkheid en beleving daar.

lucas van der wee | cepezed
lucas van der wee | cepezed
lucas van der wee | cepezed

Wonen in het park  

Ook het buitenterrein van het complex aan de Oostduinlaan kreeg een opwaardering. De parkeerplaats op het maaiveld werd vervangen door een extra laag op de bestaande parkeerkelder, met daarop landschappelijk groen. Zo geven de appartementen een sterk gevoel van 'wonen in het park'.

Park Hoog Oostduin in Benoordenhout werd door Vastgoedjournaal genomineerd als beste woningproject in Den Haag.

lucas van der wee | cepezed
cepezed
lucas van der wee | cepezed
Ronald Schleurholts | cepezed

partners

  • opdrachtgever: od75 b.v.
  • interieurontwerp: cepezedinterieur
  • landschapsontwerp: karres en brands
  • constructies: imd raadgevende ingenieurs
  • bouwfysica & duurzaamheid: dgmr
  • installaties: technion
  • advies hergebruik materialen: repurpose
  • hoofdaannemer: züblin
  • e&w-installateur: envo
  • staalconstructie: bentstaal
  • gevels: rollecate
  • kunstwerk achtergevel: karel appel

prijzen & nominaties

  • gulden feniks | 2020 | categorie transformatie
  • nationale staalprijs | 2020 | woningbouw
  • Beste Haagse vastgoedproject | 2018
  • Beste woningproject | 2017
contact
mail bd@cepezed.nl of 
bel ons business development team op +31 (0)15 2150000